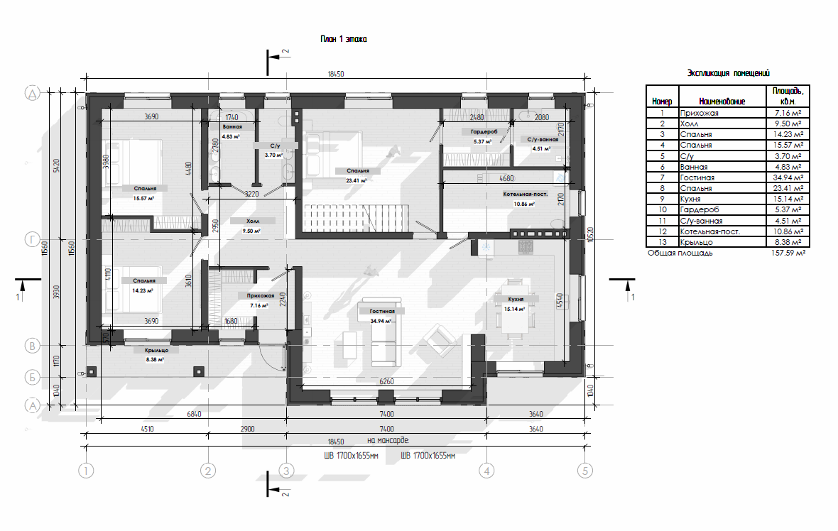
Общая площадь:  158 м2
Стоимость проекта:   руб.

    • «Тёплый контур»
    • «Предчистовая»
    • «Под ключ»
    • Фундамент
    • Цоколь, стены, перекрытия
    • Крыша
    • Окна и двери
    • Сопровождение строительства
    1. Геологическое исследование участка

    Исследование проводится путем бурения 2-х скважин на «пятне застройки участка» глубиной 6 метров с отбором грунта. По результатам исследований составляется отчет, который используется при расчетах несущей способности фундамента и на основании которого делается вывод о типе фундамента.

    2. Геодезическое исследование участка

    Исследование по измерению участка местности относительно перепадов высот, особенностей  ландшафта, подъездных путей, прохождения сетей газоснабжения, электрификации, прочих надземных и подземных сетей по «пятну застройки» и участку.

    3. Проект КЖ

    Разработка проекта КЖ (конструкции железобетонные) на основании геологического отчета. Расчет статических нагрузок на фундамент. Выведение спецификации материалов. Строительство фундамента идет строго по проекту КЖ. 

    4. Разметка дома на участке. Определение границ участка

    Привязка осей совместно с заказчиком, составление акта разметки объекта на участке. Составление акта приема-передачи строительной площадки. 
    Проверка красных линий на участке. Выставление границ. Согласование с коттеджным поселком (если требуется). 

    5. Устройство фундамента

    Окончательный тип фундамента определяется после получения геологического отчета и проведения геодезического исследования. До этих выводов (по умолчанию) в проект закладывается типовой фундамент - монолитный железобетонный ростверк 500 мм. (ширина. Зависит от конструкции несущих стен)* 600 мм. (высота. 500 мм. из которых уходит в землю, 100 мм. выходит из земли) на железобетонных сваях глубиной 2000мм от уровня земли, диаметром от 300мм. Армирование осуществляется арматурой 14-го диаметра.

    6. Подготовка

    Разработка траншей (снятие плодородного слоя, копка траншей глубиной 600 мм.)
    Песчаная подушка 100 мм.
    Бурение свай глубиной 2000 мм. от уровня земли, диаметром от 300 мм. в зависимости от нагрузок.
    Пространственный арматурный каркас (диаметр 8, 14 мм). 
    Выставление опалубки.
    Бетон В20 (М250) сертифицированный. 
    Гидрофобные добавки типа «Пенетрон» (по необходимости)

    7. Заливка

    Контроль погодных условий. Заливка зимой осуществляется при соответствии температуры противоморозной добавки и погодных условий с учетом возможных похолоданий в ближайшие 2 суток. 
    Виброуплотнение бетонной смеси. 
    Организация работы автобетононасоса(при необходимости). 
    Контроль заливки со стороны инженера технического надзора. Фотофиксация процесса заливки.

    8. Набор прочности

    Уход за бетоном: летом - поливка, зимой - укрывание или прогревание, в зависимости от условий. 
    Контроль набора прочности 
    Шлифовка при необходимости для выведения до норм точности. 

    9. Закладные под коммуникации.

    В зависимости от проекта и типа фундамента, в фундаменте устраиваются закладные для ввода в дом коммуникаций: электричества, водоснабжения и канализации.

     

    1. Рабочий проект АС (архитектурно-строительные решения)

    - Кладочные планы цоколя, 1 и 2 этажей

    - Планы перекрытия цоколя и первого этажа

    - Планы перемычек 1 и 2-го этажей

    - Ведомость перемычек 1 и 2-го этажей

    - Схема заполнения проемов 1 и 2-го этажей

    - Ведомость дверей и окон

    2. Цоколь

    Мы не экономим на высоте цоколя и по умолчания делаем высоту 45 см. (6 рядов кладки). В долгосрочной перспективе это помогает сохранить облицовочную кладку дома от разрушения путем набора влаги в нижней части дома в осенне-весенние времена года.

    Цоколь, армирующие пояса и вентканалы мы выполняем только из полнотелого кирпича высокой прочности марки не ниже М-150.

    3. Перекрытия и перемычки

    Изготовление ж/б перемычек и плит перекрытия соответствует требованиям ГОСТ, что позволяет выдерживать большие нагрузки. Мы работаем только с надежными производителями ЖБ изделий, работающих на рынке более 10-20 лет.

    Все перемычки и плиты перекрытия утеплены, для отсутствия мостиков холода.

    4. Керамический блок 2.1НФ

    По умолчанию в стоимость входит пирог стены, состоящий из блоков 2.1НФ марки прочности не менее М-150 (Wienerberger 2.1НФ не проходит) на 250 мм. или 380 мм. в зависимости от нагрузок, объема и сложности дома.

    С внешней стороны стены перед облицовочным кирпичом проводится утепление толщиной 100 мм. из минераловатного негорючего, экологически чистого утеплителя марки Knauf. Материал превосходно изолирует помещение, создавая эффект «дышащего термоса» с оптимальным соотношением температура/влажность. Все утеплители ТеплоКНАУФ (линейка для стен) обладают хорошей тепло- и звукоизоляцией, что позволит Вам сделать свой дом теплым и тихим.

    5. Крупноформатный керамический блок Poroterm концерна Wienerberger

    Прекрасное решение для стен без утеплителя – блоки Poroterm 44 и 51.

    Теплая керамика изготовлена из натуральной глины с добавлением древесных опилок, которые при производстве полностью сгорают. Так внутри кирпича образуются маленькие поры, заполненные воздухом.

    Способность пропускать пары влаги препятствует ее накоплению внутри стены и устраняет благоприятную среду для появления грибка и плесени

    Создают комфортный микроклимат в доме и обладают хорошей аккумулятивной способностью, то есть в холодное время года в доме сохраняется тепло, а в жаркое – прохлада.

    6. Газобетонные блоки Bikton

    Еще один качественный материал, имеющий своих поклонников. Не требует утепления, экономичен и быстр в возведении.

    7. Фасад

    С каждым годом на рынке все больше появляется фасадных решений, делающих Ваш дом индивидуальным и неповторимым. Мы любим создавать проекты не похожие на других и мало строим типовых проектов. Для любителей индивидуальности мы подберем наилучшее решение по соотношению цена-качество от российских и европейских производителей керамического, ручного или клинкерного кирпича. А для любителей экономии мы предложим продукцию местных заводов.

     

    1. Рабочий проект КД кровли

    - План раскладки балок перекрытия

    - План стропильной системы

    - План кровли и водосточной системы

    - Узлы кровли

    2. Стропильная система

    Монтаж осуществляется только из доски 1-го сорта.

    Весь пиломатериал проходит обязательную огнебиообработку.

    Сборка осуществляется бригадами плотников высших разрядов, специализирующихся только на кровельных работах.

     

    3. Утепление

    Утепление осуществляется утеплителем Knauf на толщину 200 мм. Все продукты для теплоизоляции кровли обладают отличными изолирующими свойствами, удобны при монтаже и безопасны для окружающей среды и здоровья человека. 

    4. Ветрозащита, пароизоляция

    Ондутис А120 защищает утеплитель и внутренние конструкции от влаги, конденсата и проникновения холодного воздуха.

    Ондутис R Термо — двухслойный материал с алюминиевым напылением. Защищает ограждающие конструкции от влаги и конденсата. Ондутис R Термо - энергосберегающий пароизоляционный материал, сохраняет тепло внутри помещения, препятствует промерзанию и увлажнению стен, появлению грибка на деревянных поверхностях и коррозии на металлоконструкциях.

    Ондутис R Термо применяется при температуре от −40 до +120°C, и продлевает срок службы конструктивных элементов дома или бани.

    5. Металлочерепица

    Grand Line классик*:

    Толщина полимерного покрытия - 25 мкм.

    Толщина металла - 0,45 мм.

    Защитный слой Zn 140 г/кв.м.

    Гарантия – 20 лет.

    *Стоит в стоимости по умолчанию. Мягкая кровля, кровля из натуральной черепицы требует перерасчета.

    6. Мягкая кровля

    В зависимости от пожеланий заказчика на уровне согласования эскизного проекта закладывается мягкая кровля производителей Ruflex, Tegola, Shinglas.

    Компания «Велес» имеет аккредитацию партнера у этих производителей. Во время монтажа кровельных материалов этих производителей, со стороны поставщика осуществляется шеф-монтаж(надзор за исполнителем), по результатам которого делается отчет и выдается гарантия на имя собственника сроком от 35 до 55 лет.

    Так же по желанию заказчика в проект может быть заложена и исполнена натуральная или минеральная(цементно-песчаная) черепица. В лучших традициях европейского опыта строительства загородных домов.

    7. Водосточная система

    Трубы и желоба из оцинкованной стали с полимерным покрытием, толщина стали - 0,5 мм.

     

    1. Профиль и фурнитура

    Пятикамерный профиль Rehau толщиной 70 мм.

    Высококачественный уплотнитель.

    Фурнитура Siegenia, Roto, Maco (Германия).

    2. Стеклопакет

    Стеклопакет энергосберегающий многофункциональный 4х14х4х14х4

    Толщина стеклопакета — 40 мм.

    Мультифункциональное напыление на внешнем стекле летом защищает от солнца, зимой сохраняет тепло (Solar).

    Низкоэмиссионное напыление на внутреннем стекле — дополнительная защита для сохранения тепла (LowE).

    Две камеры с наполнением аргоном дают наименьший показатель теплопроводности (Ar).

    Сопротивление теплопередаче R = 0,8 кв. м с/Вт.

    3. Монтаж окон

    Монтаж окон осуществляется по ГОСТу.

    Гарантия 5 лет.

    4. Комплектующие

    Отливы с полимерным покрытием заводского изготовления.

    Москитные сетки.

    Гидроизоляционные и пароизоляционные ленты, препятствующие попаданию влаги в утеплитель монтажных и усадочных швов.

    Крепление оконных блоков монтажными пластинами согласно ГОСТ для жесткой фиксации блоков к стенам и передачи ветровых, эксплуатационных нагрузок на стены.

    5. Входная дверь

    Входная металлическая дверь с терморазрывом.

    3 контура уплотнителя, 2 замка Guardian, толщина полотна 95 мм.

     

    1. Организация строительной бытовки

    Бытовка доставляется на объект, для хранения инвентаря и временного пребывания рабочих. 

    2. Подключение бытовки к электричеству

    Как правило, к распредительному щитку на участке

    3. Организация электричества и водоснабжения на участке

    В случае отсутствия

    4. Организация туалета

    Для нужд строителей

    5. Вывоз мусор

    Вывоз строительного мусора на мусорный полигон

    6. Организация круглосуточного видеонаблюдения

    Заказчику предоставляется онлайн доступ к видеокамере

    7. Сопровождение Заказчика на всех этапах строительства менеджером

    Этапы: документация, расширение комплектации, выезды, ответы на вопросы, согласования и пр.

    8. Полное юридическое сопровождение строительства*

    *дополнительная услуга. Ссылка на услугу

     

    • Фундамент
    • Цоколь, стены, перекрытия
    • Крыша
    • Окна и двери
    • Сопровождение строительства
    • Предчистовая отделка
    1. Геологическое исследование участка

    Исследование проводится путем бурения 2-х скважин на «пятне застройки участка» глубиной 6 метров с отбором грунта. По результатам исследований составляется отчет, который используется при расчетах несущей способности фундамента и на основании которого делается вывод о типе фундамента.

    2. Геодезическое исследование участка

    Исследование по измерению участка местности относительно перепадов высот, особенностей  ландшафта, подъездных путей, прохождения сетей газоснабжения, электрификации, прочих надземных и подземных сетей по «пятну застройки» и участку.

    3. Проект КЖ

    Разработка проекта КЖ (конструкции железобетонные) на основании геологического отчета. Расчет статических нагрузок на фундамент. Выведение спецификации материалов. Строительство фундамента идет строго по проекту КЖ. 

    4. Разметка дома на участке. Определение границ участка

    Привязка осей совместно с заказчиком, составление акта разметки объекта на участке. Составление акта приема-передачи строительной площадки. 
    Проверка красных линий на участке. Выставление границ. Согласование с коттеджным поселком (если требуется). 

    5. Устройство фундамента

    Окончательный тип фундамента определяется после получения геологического отчета и проведения геодезического исследования. До этих выводов (по умолчанию) в проект закладывается типовой фундамент - монолитный железобетонный ростверк 500 мм. (ширина. Зависит от конструкции несущих стен)* 600 мм. (высота. 500 мм. из которых уходит в землю, 100 мм. выходит из земли) на железобетонных сваях глубиной 2000мм от уровня земли, диаметром от 300мм. Армирование осуществляется арматурой 14-го диаметра.

    6. Подготовка

    Разработка траншей (снятие плодородного слоя, копка траншей глубиной 600 мм.)
    Песчаная подушка 100 мм.
    Бурение свай глубиной 2000 мм. от уровня земли, диаметром от 300 мм. в зависимости от нагрузок.
    Пространственный арматурный каркас (диаметр 8, 14 мм). 
    Выставление опалубки.
    Бетон В20 (М250) сертифицированный. 
    Гидрофобные добавки типа «Пенетрон» (по необходимости)

    7. Заливка

    Контроль погодных условий. Заливка зимой осуществляется при соответствии температуры противоморозной добавки и погодных условий с учетом возможных похолоданий в ближайшие 2 суток. 
    Виброуплотнение бетонной смеси. 
    Организация работы автобетононасоса(при необходимости). 
    Контроль заливки со стороны инженера технического надзора. Фотофиксация процесса заливки.

    8. Набор прочности

    Уход за бетоном: летом - поливка, зимой - укрывание или прогревание, в зависимости от условий. 
    Контроль набора прочности 
    Шлифовка при необходимости для выведения до норм точности. 

    9. Закладные под коммуникации.

    В зависимости от проекта и типа фундамента, в фундаменте устраиваются закладные для ввода в дом коммуникаций: электричества, водоснабжения и канализации.

     

    1. Рабочий проект АС (архитектурно-строительные решения)

    - Кладочные планы цоколя, 1 и 2 этажей

    - Планы перекрытия цоколя и первого этажа

    - Планы перемычек 1 и 2-го этажей

    - Ведомость перемычек 1 и 2-го этажей

    - Схема заполнения проемов 1 и 2-го этажей

    - Ведомость дверей и окон

    2. Цоколь

    Мы не экономим на высоте цоколя и по умолчания делаем высоту 45 см. (6 рядов кладки). В долгосрочной перспективе это помогает сохранить облицовочную кладку дома от разрушения путем набора влаги в нижней части дома в осенне-весенние времена года.

    Цоколь, армирующие пояса и вентканалы мы выполняем только из полнотелого кирпича высокой прочности марки не ниже М-150.

    3. Перекрытия и перемычки

    Изготовление ж/б перемычек и плит перекрытия соответствует требованиям ГОСТ, что позволяет выдерживать большие нагрузки. Мы работаем только с надежными производителями ЖБ изделий, работающих на рынке более 10-20 лет.

    Все перемычки и плиты перекрытия утеплены, для отсутствия мостиков холода.

    4. Керамический блок 2.1НФ

    По умолчанию в стоимость входит пирог стены, состоящий из блоков 2.1НФ марки прочности не менее М-150 (Wienerberger 2.1НФ не проходит) на 250 мм. или 380 мм. в зависимости от нагрузок, объема и сложности дома.

    С внешней стороны стены перед облицовочным кирпичом проводится утепление толщиной 100 мм. из минераловатного негорючего, экологически чистого утеплителя марки Knauf. Материал превосходно изолирует помещение, создавая эффект «дышащего термоса» с оптимальным соотношением температура/влажность. Все утеплители ТеплоКНАУФ (линейка для стен) обладают хорошей тепло- и звукоизоляцией, что позволит Вам сделать свой дом теплым и тихим.

    5. Крупноформатный керамический блок Poroterm концерна Wienerberger

    Прекрасное решение для стен без утеплителя – блоки Poroterm 44 и 51.

    Теплая керамика изготовлена из натуральной глины с добавлением древесных опилок, которые при производстве полностью сгорают. Так внутри кирпича образуются маленькие поры, заполненные воздухом.

    Способность пропускать пары влаги препятствует ее накоплению внутри стены и устраняет благоприятную среду для появления грибка и плесени

    Создают комфортный микроклимат в доме и обладают хорошей аккумулятивной способностью, то есть в холодное время года в доме сохраняется тепло, а в жаркое – прохлада.

    6. Газобетонные блоки Bikton

    Еще один качественный материал, имеющий своих поклонников. Не требует утепления, экономичен и быстр в возведении.

    7. Фасад

    С каждым годом на рынке все больше появляется фасадных решений, делающих Ваш дом индивидуальным и неповторимым. Мы любим создавать проекты не похожие на других и мало строим типовых проектов. Для любителей индивидуальности мы подберем наилучшее решение по соотношению цена-качество от российских и европейских производителей керамического, ручного или клинкерного кирпича. А для любителей экономии мы предложим продукцию местных заводов.

     

    1. Рабочий проект КД кровли

    - План раскладки балок перекрытия

    - План стропильной системы

    - План кровли и водосточной системы

    - Узлы кровли

    2. Стропильная система

    Монтаж осуществляется только из доски 1-го сорта.

    Весь пиломатериал проходит обязательную огнебиообработку.

    Сборка осуществляется бригадами плотников высших разрядов, специализирующихся только на кровельных работах.

     

    3. Утепление

    Утепление осуществляется утеплителем Knauf на толщину 200 мм. Все продукты для теплоизоляции кровли обладают отличными изолирующими свойствами, удобны при монтаже и безопасны для окружающей среды и здоровья человека. 

    4. Ветрозащита, пароизоляция

    Ондутис А120 защищает утеплитель и внутренние конструкции от влаги, конденсата и проникновения холодного воздуха.

    Ондутис R Термо — двухслойный материал с алюминиевым напылением. Защищает ограждающие конструкции от влаги и конденсата. Ондутис R Термо - энергосберегающий пароизоляционный материал, сохраняет тепло внутри помещения, препятствует промерзанию и увлажнению стен, появлению грибка на деревянных поверхностях и коррозии на металлоконструкциях.

    Ондутис R Термо применяется при температуре от −40 до +120°C, и продлевает срок службы конструктивных элементов дома или бани.

    5. Металлочерепица

    Grand Line классик*:

    Толщина полимерного покрытия - 25 мкм.

    Толщина металла - 0,45 мм.

    Защитный слой Zn 140 г/кв.м.

    Гарантия – 20 лет.

    *Стоит в стоимости по умолчанию. Мягкая кровля, кровля из натуральной черепицы требует перерасчета.

    6. Мягкая кровля

    В зависимости от пожеланий заказчика на уровне согласования эскизного проекта закладывается мягкая кровля производителей Ruflex, Tegola, Shinglas.

    Компания «Велес» имеет аккредитацию партнера у этих производителей. Во время монтажа кровельных материалов этих производителей, со стороны поставщика осуществляется шеф-монтаж(надзор за исполнителем), по результатам которого делается отчет и выдается гарантия на имя собственника сроком от 35 до 55 лет.

    Так же по желанию заказчика в проект может быть заложена и исполнена натуральная или минеральная(цементно-песчаная) черепица. В лучших традициях европейского опыта строительства загородных домов.

    7. Водосточная система

    Трубы и желоба из оцинкованной стали с полимерным покрытием, толщина стали - 0,5 мм.

     

    1. Профиль и фурнитура

    Пятикамерный профиль Rehau толщиной 70 мм.

    Высококачественный уплотнитель.

    Фурнитура Siegenia, Roto, Maco (Германия).

    2. Стеклопакет

    Стеклопакет энергосберегающий многофункциональный 4х14х4х14х4

    Толщина стеклопакета — 40 мм.

    Мультифункциональное напыление на внешнем стекле летом защищает от солнца, зимой сохраняет тепло (Solar).

    Низкоэмиссионное напыление на внутреннем стекле — дополнительная защита для сохранения тепла (LowE).

    Две камеры с наполнением аргоном дают наименьший показатель теплопроводности (Ar).

    Сопротивление теплопередаче R = 0,8 кв. м с/Вт.

    3. Монтаж окон

    Монтаж окон осуществляется по ГОСТу.

    Гарантия 5 лет.

    4. Комплектующие

    Отливы с полимерным покрытием заводского изготовления.

    Москитные сетки.

    Гидроизоляционные и пароизоляционные ленты, препятствующие попаданию влаги в утеплитель монтажных и усадочных швов.

    Крепление оконных блоков монтажными пластинами согласно ГОСТ для жесткой фиксации блоков к стенам и передачи ветровых, эксплуатационных нагрузок на стены.

    5. Входная дверь

    Входная металлическая дверь с терморазрывом.

    3 контура уплотнителя, 2 замка Guardian, толщина полотна 95 мм.

     

    1. Организация строительной бытовки

    Бытовка доставляется на объект, для хранения инвентаря и временного пребывания рабочих. 

    2. Подключение бытовки к электричеству

    Как правило, к распредительному щитку на участке

    3. Организация электричества и водоснабжения на участке

    В случае отсутствия

    4. Организация туалета

    Для нужд строителей

    5. Вывоз мусор

    Вывоз строительного мусора на мусорный полигон

    6. Организация круглосуточного видеонаблюдения

    Заказчику предоставляется онлайн доступ к видеокамере

    7. Сопровождение Заказчика на всех этапах строительства менеджером

    Этапы: документация, расширение комплектации, выезды, ответы на вопросы, согласования и пр.

    8. Полное юридическое сопровождение строительства*

    *дополнительная услуга. Ссылка на услугу

     

    1. Межэтажная лестница

    Устройство основания лестницы (металл каркас или монолит)

    2. Система электроснабжения

    Черновая разводка электросетей.

    Монтаж подрозетников, сборка электрощита, монтаж заземления, наружное подключение

    3. Штукатурка

    Механизированная штукатурка внутренних стен (цементно-песчаная во влажных помещениях, гипсовая в остальных)

    4. Система отопления, водоснабжения, канализации

    Монтаж теплых полов, радиаторов, газового котла, насосов, бойлера. Монтаж системы ГВС, ХВС, канализации.

    5. Утепление и стяжка полов

    Утепление полов 1-го этажа 100мм экструдированным пенополистиролом

    Полусухая механизированная стяжка полов 1 и 2-го этажей

    6. Устройство отмостки

    Вокруг дома

     

    • Фундамент
    • Цоколь, стены, перекрытия
    • Крыша
    • Окна и двери
    • Сопровождение строительства
    • Предчистовая отделка
    • Отделка интерьера
    1. Геологическое исследование участка

    Исследование проводится путем бурения 2-х скважин на «пятне застройки участка» глубиной 6 метров с отбором грунта. По результатам исследований составляется отчет, который используется при расчетах несущей способности фундамента и на основании которого делается вывод о типе фундамента.

    2. Геодезическое исследование участка

    Исследование по измерению участка местности относительно перепадов высот, особенностей  ландшафта, подъездных путей, прохождения сетей газоснабжения, электрификации, прочих надземных и подземных сетей по «пятну застройки» и участку.

    3. Проект КЖ

    Разработка проекта КЖ (конструкции железобетонные) на основании геологического отчета. Расчет статических нагрузок на фундамент. Выведение спецификации материалов. Строительство фундамента идет строго по проекту КЖ. 

    4. Разметка дома на участке. Определение границ участка

    Привязка осей совместно с заказчиком, составление акта разметки объекта на участке. Составление акта приема-передачи строительной площадки. 
    Проверка красных линий на участке. Выставление границ. Согласование с коттеджным поселком (если требуется). 

    5. Устройство фундамента

    Окончательный тип фундамента определяется после получения геологического отчета и проведения геодезического исследования. До этих выводов (по умолчанию) в проект закладывается типовой фундамент - монолитный железобетонный ростверк 500 мм. (ширина. Зависит от конструкции несущих стен)* 600 мм. (высота. 500 мм. из которых уходит в землю, 100 мм. выходит из земли) на железобетонных сваях глубиной 2000мм от уровня земли, диаметром от 300мм. Армирование осуществляется арматурой 14-го диаметра.

    6. Подготовка

    Разработка траншей (снятие плодородного слоя, копка траншей глубиной 600 мм.)
    Песчаная подушка 100 мм.
    Бурение свай глубиной 2000 мм. от уровня земли, диаметром от 300 мм. в зависимости от нагрузок.
    Пространственный арматурный каркас (диаметр 8, 14 мм). 
    Выставление опалубки.
    Бетон В20 (М250) сертифицированный. 
    Гидрофобные добавки типа «Пенетрон» (по необходимости)

    7. Заливка

    Контроль погодных условий. Заливка зимой осуществляется при соответствии температуры противоморозной добавки и погодных условий с учетом возможных похолоданий в ближайшие 2 суток. 
    Виброуплотнение бетонной смеси. 
    Организация работы автобетононасоса(при необходимости). 
    Контроль заливки со стороны инженера технического надзора. Фотофиксация процесса заливки.

    8. Набор прочности

    Уход за бетоном: летом - поливка, зимой - укрывание или прогревание, в зависимости от условий. 
    Контроль набора прочности 
    Шлифовка при необходимости для выведения до норм точности. 

    9. Закладные под коммуникации.

    В зависимости от проекта и типа фундамента, в фундаменте устраиваются закладные для ввода в дом коммуникаций: электричества, водоснабжения и канализации.

     

    1. Рабочий проект АС (архитектурно-строительные решения)

    - Кладочные планы цоколя, 1 и 2 этажей

    - Планы перекрытия цоколя и первого этажа

    - Планы перемычек 1 и 2-го этажей

    - Ведомость перемычек 1 и 2-го этажей

    - Схема заполнения проемов 1 и 2-го этажей

    - Ведомость дверей и окон

    2. Цоколь

    Мы не экономим на высоте цоколя и по умолчания делаем высоту 45 см. (6 рядов кладки). В долгосрочной перспективе это помогает сохранить облицовочную кладку дома от разрушения путем набора влаги в нижней части дома в осенне-весенние времена года.

    Цоколь, армирующие пояса и вентканалы мы выполняем только из полнотелого кирпича высокой прочности марки не ниже М-150.

    3. Перекрытия и перемычки

    Изготовление ж/б перемычек и плит перекрытия соответствует требованиям ГОСТ, что позволяет выдерживать большие нагрузки. Мы работаем только с надежными производителями ЖБ изделий, работающих на рынке более 10-20 лет.

    Все перемычки и плиты перекрытия утеплены, для отсутствия мостиков холода.

    4. Керамический блок 2.1НФ

    По умолчанию в стоимость входит пирог стены, состоящий из блоков 2.1НФ марки прочности не менее М-150 (Wienerberger 2.1НФ не проходит) на 250 мм. или 380 мм. в зависимости от нагрузок, объема и сложности дома.

    С внешней стороны стены перед облицовочным кирпичом проводится утепление толщиной 100 мм. из минераловатного негорючего, экологически чистого утеплителя марки Knauf. Материал превосходно изолирует помещение, создавая эффект «дышащего термоса» с оптимальным соотношением температура/влажность. Все утеплители ТеплоКНАУФ (линейка для стен) обладают хорошей тепло- и звукоизоляцией, что позволит Вам сделать свой дом теплым и тихим.

    5. Крупноформатный керамический блок Poroterm концерна Wienerberger

    Прекрасное решение для стен без утеплителя – блоки Poroterm 44 и 51.

    Теплая керамика изготовлена из натуральной глины с добавлением древесных опилок, которые при производстве полностью сгорают. Так внутри кирпича образуются маленькие поры, заполненные воздухом.

    Способность пропускать пары влаги препятствует ее накоплению внутри стены и устраняет благоприятную среду для появления грибка и плесени

    Создают комфортный микроклимат в доме и обладают хорошей аккумулятивной способностью, то есть в холодное время года в доме сохраняется тепло, а в жаркое – прохлада.

    6. Газобетонные блоки Bikton

    Еще один качественный материал, имеющий своих поклонников. Не требует утепления, экономичен и быстр в возведении.

    7. Фасад

    С каждым годом на рынке все больше появляется фасадных решений, делающих Ваш дом индивидуальным и неповторимым. Мы любим создавать проекты не похожие на других и мало строим типовых проектов. Для любителей индивидуальности мы подберем наилучшее решение по соотношению цена-качество от российских и европейских производителей керамического, ручного или клинкерного кирпича. А для любителей экономии мы предложим продукцию местных заводов.

     

    1. Рабочий проект КД кровли

    - План раскладки балок перекрытия

    - План стропильной системы

    - План кровли и водосточной системы

    - Узлы кровли

    2. Стропильная система

    Монтаж осуществляется только из доски 1-го сорта.

    Весь пиломатериал проходит обязательную огнебиообработку.

    Сборка осуществляется бригадами плотников высших разрядов, специализирующихся только на кровельных работах.

     

    3. Утепление

    Утепление осуществляется утеплителем Knauf на толщину 200 мм. Все продукты для теплоизоляции кровли обладают отличными изолирующими свойствами, удобны при монтаже и безопасны для окружающей среды и здоровья человека. 

    4. Ветрозащита, пароизоляция

    Ондутис А120 защищает утеплитель и внутренние конструкции от влаги, конденсата и проникновения холодного воздуха.

    Ондутис R Термо — двухслойный материал с алюминиевым напылением. Защищает ограждающие конструкции от влаги и конденсата. Ондутис R Термо - энергосберегающий пароизоляционный материал, сохраняет тепло внутри помещения, препятствует промерзанию и увлажнению стен, появлению грибка на деревянных поверхностях и коррозии на металлоконструкциях.

    Ондутис R Термо применяется при температуре от −40 до +120°C, и продлевает срок службы конструктивных элементов дома или бани.

    5. Металлочерепица

    Grand Line классик*:

    Толщина полимерного покрытия - 25 мкм.

    Толщина металла - 0,45 мм.

    Защитный слой Zn 140 г/кв.м.

    Гарантия – 20 лет.

    *Стоит в стоимости по умолчанию. Мягкая кровля, кровля из натуральной черепицы требует перерасчета.

    6. Мягкая кровля

    В зависимости от пожеланий заказчика на уровне согласования эскизного проекта закладывается мягкая кровля производителей Ruflex, Tegola, Shinglas.

    Компания «Велес» имеет аккредитацию партнера у этих производителей. Во время монтажа кровельных материалов этих производителей, со стороны поставщика осуществляется шеф-монтаж(надзор за исполнителем), по результатам которого делается отчет и выдается гарантия на имя собственника сроком от 35 до 55 лет.

    Так же по желанию заказчика в проект может быть заложена и исполнена натуральная или минеральная(цементно-песчаная) черепица. В лучших традициях европейского опыта строительства загородных домов.

    7. Водосточная система

    Трубы и желоба из оцинкованной стали с полимерным покрытием, толщина стали - 0,5 мм.

     

    1. Профиль и фурнитура

    Пятикамерный профиль Rehau толщиной 70 мм.

    Высококачественный уплотнитель.

    Фурнитура Siegenia, Roto, Maco (Германия).

    2. Стеклопакет

    Стеклопакет энергосберегающий многофункциональный 4х14х4х14х4

    Толщина стеклопакета — 40 мм.

    Мультифункциональное напыление на внешнем стекле летом защищает от солнца, зимой сохраняет тепло (Solar).

    Низкоэмиссионное напыление на внутреннем стекле — дополнительная защита для сохранения тепла (LowE).

    Две камеры с наполнением аргоном дают наименьший показатель теплопроводности (Ar).

    Сопротивление теплопередаче R = 0,8 кв. м с/Вт.

    3. Монтаж окон

    Монтаж окон осуществляется по ГОСТу.

    Гарантия 5 лет.

    4. Комплектующие

    Отливы с полимерным покрытием заводского изготовления.

    Москитные сетки.

    Гидроизоляционные и пароизоляционные ленты, препятствующие попаданию влаги в утеплитель монтажных и усадочных швов.

    Крепление оконных блоков монтажными пластинами согласно ГОСТ для жесткой фиксации блоков к стенам и передачи ветровых, эксплуатационных нагрузок на стены.

    5. Входная дверь

    Входная металлическая дверь с терморазрывом.

    3 контура уплотнителя, 2 замка Guardian, толщина полотна 95 мм.

     

    1. Организация строительной бытовки

    Бытовка доставляется на объект, для хранения инвентаря и временного пребывания рабочих. 

    2. Подключение бытовки к электричеству

    Как правило, к распредительному щитку на участке

    3. Организация электричества и водоснабжения на участке

    В случае отсутствия

    4. Организация туалета

    Для нужд строителей

    5. Вывоз мусор

    Вывоз строительного мусора на мусорный полигон

    6. Организация круглосуточного видеонаблюдения

    Заказчику предоставляется онлайн доступ к видеокамере

    7. Сопровождение Заказчика на всех этапах строительства менеджером

    Этапы: документация, расширение комплектации, выезды, ответы на вопросы, согласования и пр.

    8. Полное юридическое сопровождение строительства*

    *дополнительная услуга. Ссылка на услугу

     

    1. Межэтажная лестница

    Устройство основания лестницы (металл каркас или монолит)

    2. Система электроснабжения

    Черновая разводка электросетей.

    Монтаж подрозетников, сборка электрощита, монтаж заземления, наружное подключение

    3. Штукатурка

    Механизированная штукатурка внутренних стен (цементно-песчаная во влажных помещениях, гипсовая в остальных)

    4. Система отопления, водоснабжения, канализации

    Монтаж теплых полов, радиаторов, газового котла, насосов, бойлера. Монтаж системы ГВС, ХВС, канализации.

    5. Утепление и стяжка полов

    Утепление полов 1-го этажа 100мм экструдированным пенополистиролом

    Полусухая механизированная стяжка полов 1 и 2-го этажей

    6. Устройство отмостки

    Вокруг дома

     

    1. Благоустройство

    Монтаж брусчатки

    Устройство системы водоотведения

    Озеленение и ландшафтный дизайн

    2. Забор, ворота, ограждения, шлагбаум

    Изготовление (покупка) и монтаж

    3. Дизайн интерьера

    С подборкой материалов и мебели по оговоренным ценам

    Авторский надзор

    4. Отделочные работы

    Как внутри, так и снаружи дома

    5. Меблировка

    Подбор, изготовление/закупка и установка мебели 

    6. Системы безопасности, видеонаблюдения, пожаротушения, умный дом

    Проектирование и установка

     

    Заявка на консультацию

    Заполните форму и наши специалисты проконсультируют Вас абсолютно бесплатно.

    Отправляя данную форму Вы соглашаетесь на обработку персональных данных